Typical detail of the beam AutoCAD DWG drawing file|CADBULL
Description
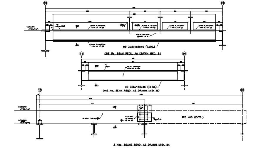
Typical detail of the beam is given in this 2D AutoCAD DWG drawing. Sectional details are clearly given in this drawing file. The layout of beams for pan supply tank section details are given in this DWG file. This Cad drawing file is very useful for civil engineers and structural engineers. Download the AutoCAD 2D DWG file. Thank you so much for downloading the DWG file from the cadbull website.
File Type:
DWG
File Size:
184 KB
Category::
Structure
Sub Category::
Section Plan CAD Blocks & DWG Drawing Models
type:
Gold

Uploaded by:
AS
SETHUPATHI

